TAIPA

TAIPA

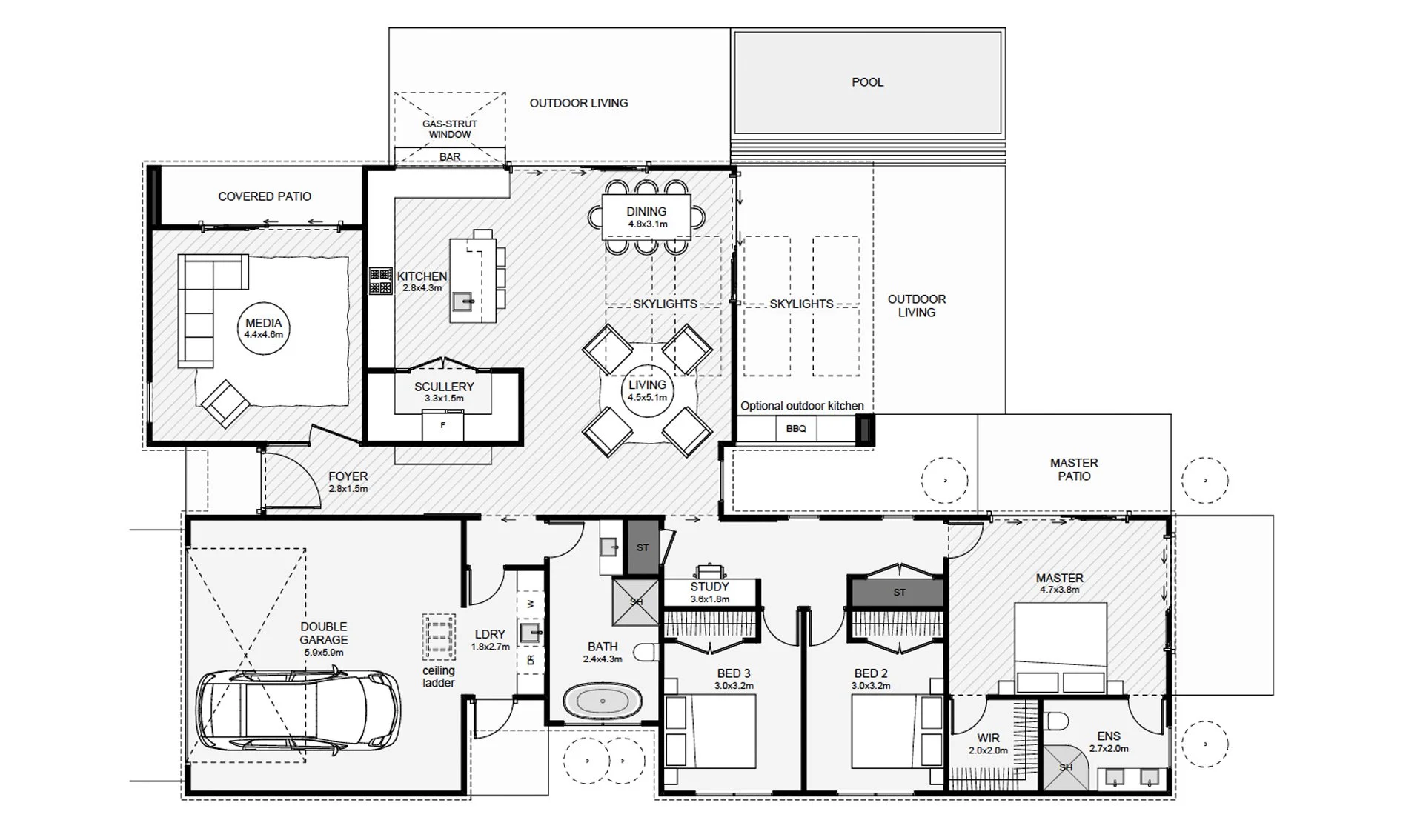
Floor Area: 209m²

Designed for limitless family living, this twin-gable home combines modern and traditional architecture. The kitchen, dining, and living areas ow out to a covered outdoor living area with an outdoor kitchen and bar on either side. There is even room for an optional pool. If you’re looking for an ultimate single-storey family home, you’re looking at it!

Request more information
 
Keegan Anderson